Una casa en el edificio Patuel Longás, el Goerlich más moderno

14 febrero 2026

por | 14 febrero 2026

Hay edificios que dan carácter a una ciudad. Proyectado en 1941 por Javier Goerlich para un matrimonio amigo, el edificio Patuel Longás es uno de esos. Su presencia racionalista, de planta pentagonal, se sitúa en un vértice central de Valencia, entre la calle Ruzafa, General Sanmartín y la Gran Vía, con un diseño de corte expresionista y ornamentación art déco. Sus ventanas en ángulo y las formas curvas de sus balcones definen su silueta.

Pensado inicialmente para albergar un cine en su planta baja (apunte rosa: no en vano, el Patuel de este edificio era tío del Vicente Patuel empresario de cine que fue segundo marido de la actriz y cantante Carmen Sevilla), finalmente el cine no se hizo, pero el edificio tiene la particularidad de que se trata de uno de los más interesantes del primer movimiento moderno en la ciudad. Pues bien, hoy entramos en una de sus casas, intervenida por Blat Tatay Arquitectos.

Edificio Patuel Longás, en un dibujo de la Fundación Goerlich.

«Para nosotros, el proyecto empezó el día que visitamos el piso por primera vez. Descubrimos un espacio inalterado, como si se hubiera cerrado una puerta en 1946 y la hubieramos abierto de nuevo en 2024. No había gas, el calentador funcionaba por combustión de cáscara de almendra, descubrimos una caja fuerte intacta; los enormes ventanales de madera, colocados asimétricamente, permanecían con las persianas bajadas; las molduras en techos y bajo vigas competían con el estilo racionalista de las fachadas. Encontramos una vivienda excesivamente compartimentada. A las estancias, en cuyo interior se remarcaba la forma irregular de la planta, se accedía por un interminable pasillo. No obstante, el potencial de la vivienda era incuestionable, la casa tenía esencia y nuestro deber era preservarla», explica Andrea Blat desde el estudio de arquitectura al frente del proyecto.

La intervención buscaba extraer «lo verdaderamente esencial de esa realidad con la que nos encontrábamos, intensificar sus múltiples cualidades». Valoraron lo inorgánico primero, aquello que tenía que ver con la percepción del espacio: la luz, el silencio, el confort, la escala, las vistas.

Dialogar con las preexistencias también formaba parte del reto: preservar las molduras, conservar las alturas, ennoblecer las carpinterías de madera natural y también su colocación asimétrica en fachadas. «Buscamos llevar la iluminación natural a todas las estancias. Para ello, se agruparon las zonas húmedas y se eliminaron pasillos, liberando así las fachadas. Distinguimos la zona de día, social y abierta, de la zona de noche, privada e íntima», explican.

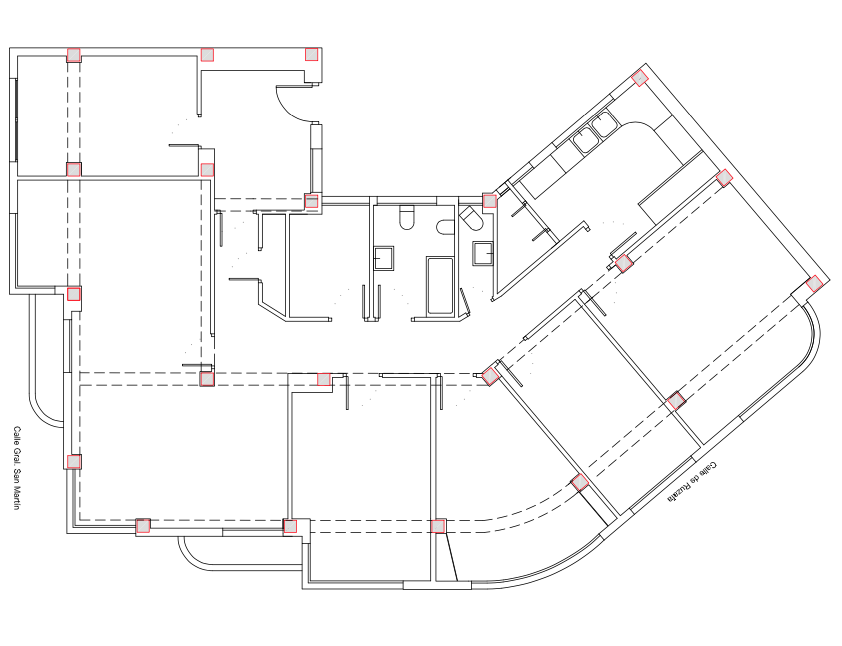
Plano de la vivienda en el estado previo a la intervención.

Al fin y al cabo, debía ser una casa pensada para vivirse, que se disfrutara tanto en su calma cotidiana como en los encuentros con amigos. «Que realmente conmoviera a las personas que la habitaran, que se adaptara a sus modos de vida, también cambiantes con el tiempo». La sensibilidad hacia esos valores e intereses debía ser proporcional y compatible con mantener la profesionalidad y el control técnico y económico.

«Estamos orgullosos de Casa Goerlich por ser una obra genuina, llevada a cabo con un profundo conocimiento de oficio para encontrar y conservar la tradición y, a su vez, proyectarla hacia el futuro. Cada decisión es tranquila y medida, y con ello se logra recuperar el sentido de habitar esta vivienda de entorno, vistas y luz privilegiada. Casi sin preocuparnos del resultado final, que no fuera un fin en sí, sino una consecuencia», concluyen.

Fotografía: Bacon Studio. Foto de apertura: Archivo Fundación Docomomo Ibérico.

Te puede interesar

André Ricard, la democratización de lo funcional

André Ricard, la democratización de lo funcional

Pionero en la creación de objetos industriales, impulsor del pensamiento crítico y figura decisiva en la institucionalización del diseño en España, la trayectoria del diseñador André Ricard refleja la evolución misma de la disciplina en nuestro país. De padre francés,...

Café, cruasán y banquito

Café, cruasán y banquito

Ubicado en el centro de Valencia, a escasos metros de la Puerta del Mar, Banquito Bakery ha sido concebido como un ejercicio de síntesis y honestidad material. «Con apenas 26m2 de superficie total, el proyecto nace de una premisa clara: funcionar como un espejo, una...

Chema Madoz, el fotógrafo artesano

Chema Madoz, el fotógrafo artesano

Chema Madoz cuenta que con cuatro años, antes de iniciarse en el colegio, su madre lo llevó a la escuela que tenía en su casa una mujer que ella conocía para que, allí, se fuera familiarizando con la enseñanza. La clase se hacía en la pequeña cocina de la señora y,...

Pin It on Pinterest